MAD homepage | Fixings | FIXING DETAIL PER APPLICATION vorige |
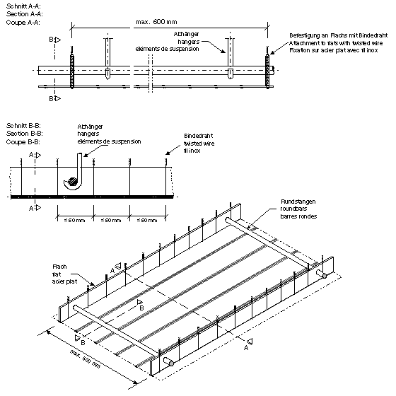
Suspended ceiling
Possible types
of material
Mikro koper
Jura
Fortuna
Nauta
Prospect koper
Quintus
Forte
Linge
Mikro messing
Terra